名称:高压开关
型号:GW23

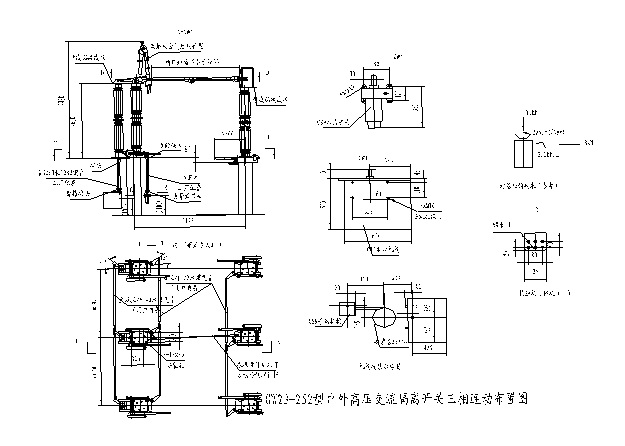
■ 结构简介
◎ 成套隔离开关由GW23-126/252(D) (W)型隔离开关本体、CJ7电动机构、人力操动机构、传动附件等组成。
◎ 单极隔离开关分动侧、静侧两部分,动侧部分由主闸刀、瓷瓶、底座等三部分组成。
◎ 底座部分由钢构架、操作拐臂、连杆以及接地闸刀底座和刀杆等组成。对于操作极,还装设有主闸刀与接地闸刀间的机构连锁部件。
◎ 每极动侧有两列瓷瓶,一列用于支承主闸刀,一列用来传递操作扭矩,又称“操作瓷瓶”。
◎ 主闸刀部分先将操作瓷瓶水平的转动借助于一对锥齿轮转换成双拐臂垂直的转动,再由双连杆带动座转动,并实现折叠与夹紧这两大运动过程。分闸后形成可见的水平断口。
◎ 静侧部分主要由三组件组成:静侧底座、静侧瓷瓶和静触杆。不接地者为尺寸不大的钢构架,有接地闸刀时则增设相应的附件。静侧绝缘子与动侧相同。静触杆是一根外径为Φ40地镀银铜棒,与接线端子板固定。
■ 主要技术参数
GW23-126(D) (W)型隔离开关
GW23-252(D) (W)型隔离开关
|
型号 |
额定
电压
kV |
额定
电流
A |
额定短时耐受
电流kA/S |
额定峰值耐受
电流kA |
一分钟工频
耐受电压kV |
雷电冲击
耐压kV | ||||
|
主导电回路 |
接地开关 |
主导电回路 |
接地开关 |
对地 |
断口 |
对地 |
断口 | |||
|
GW23-252(D)(W)/1250 |
252 |
1250 |
40/3 |
40/2 |
100 |
100 |
460
|
606 |
1050
|
1256 |
|
GW23-252(D)(W)/1600 |
1600 |
40/3 |
40/2 |
100 |
100 | |||||
|
GW23-252(D)(W)/2500 |
2500 |
50/3 |
50/2 |
125 |
125 | |||||
|
GW23-252(D)(W)/3150 |
3150 |
50/3 |
50/2 |
125 |
125 | |||||




